650 W 6th StreetAtoka, OK 74525




Mortgage Calculator
Monthly Payment (Est.)
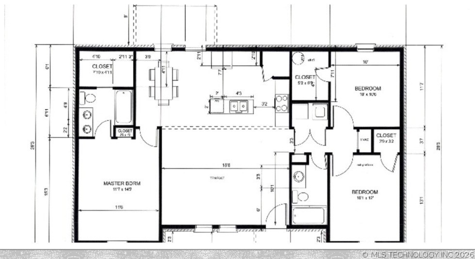
$912Check out this brand new 3-bedroom 2-bathroom brick home in the heart of Atoka. The interior features a smart open floor plan that connects the kitchen island directly to the main living area. The primary suite is tucked away for privacy and includes a spacious walk-in closet. Since this is new construction, you get the benefit of modern energy efficiency and a fresh start from the ground up. You are perfectly positioned about 2 hours from both Dallas and Oklahoma City, making it an easy drive for weekend trips.
| 4 weeks ago | Listing first seen on site | |
| 4 weeks ago | Listing updated with changes from the MLS® |
Listing information is provided by Participants of the MLS Technology MLS. IDX information is provided exclusively for personal, non-commercial use, and may not be used for any purpose other than to identify prospective properties consumers may be interested in purchasing. Information is deemed reliable but not guaranteed. Copyright 2026, MLS Technology MLS.
Last checked: 2026-03-22 01:20 AM UTC
